
2 ZIMMER und Tiefgaragenstellplatz - WOHNUNG MIT TERRASSE IN OBERLAA!

Einleitung
GROSSZÜGIGE 2 - ZIMMER WOHNUNG UND TG STELLPLATZ IN U-BAHN NÄHE!
Das schöne Wohnprojekt wurde im Herzen des 10. Wiener Bezirks, in Oberlaa errichtet. Das gesamte Gebäude wurde mit qualitativ hochwertiger Ausstattung versehen.
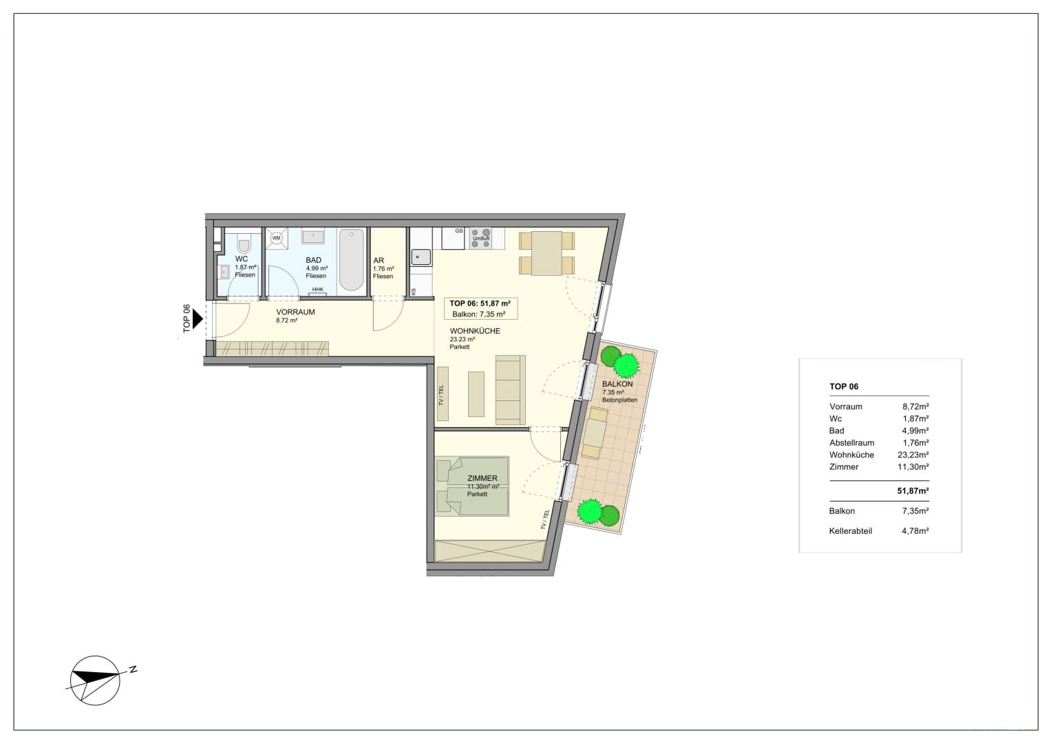
Raumaufteilung // Vorzimmer // Wohnküche // Schlafzimmer // Badezimmer mit Badewanne und Waschmaschinenanschluss // WC mit Handwaschbecken // Abstellraum // Balkon
Ausstattung // vollständig ausgestattete Küche // Niedrigenergiehaus // Massivbauweise aus Ziegel und Stahlbeton // Eichen-Echtholzparkett // Fußbodenheizung mit Einzelraumregelung, Handtuchheizkörper im Badezimmer // Kunststofffenster mit dreifacher Isolierverglasung // außenliegende, elektrische Beschattung // Badewanne // hochwertiges Feinsteinzeug und Sanitärausstattung in den Nassbereichen // Freiflächen mit Betonbelag, Außenbeleuchtung, Wasser- und Stromanschluss // Wohnungseingangstüren Widerstandsklasse III // großzügiger Lift // barrierefrei
Stellplatz // in der Miete ist ein Tifgaragenstellplatz inkludiert
Allgemeine Teile Das Gebäude wurde barrierefrei inkl. Liftanlage errichtet. Im Untergeschoß befinden sich der Fahrrad - und Kinderwagenabstellraum sowie die Einlagerungsräume.
Änderungen und Irrtümer vorbehalten. Wir weisen darauf hin, dass wir mit dem Abgeberin ständiger Geschäftsbeziehung stehen und schon aus diesem Grund ein wirtschaftliches Naheverhältnis vorliegt.
Der Immobilienmakler erklärt, dass er – entgegen dem in der Immobilienwirtschaft üblichen Geschäftsgebrauch des Doppelmaklers – einseitig nur für den Vermieter tätig ist.
Flächen & Zimmer


















