
Helle 2-Zimmer Wohnung mit Balkon in Mariahilf!

Einleitung
Die Wohnung befindet sich in einem 2013 erbauten, sehr gepflegten Neubau in 1060 Wien, Mollardgasse 33. Die 2-Zimmer Wohnung besticht durch die hochwertige Ausstattung und befindet sich im 2. Stock.
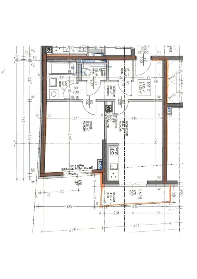
Raumaufteilung Die Wohnung verfügt über einen kompakten Grundriss mit Vorzimmer, Wohnküche, Schlafzimmer, Badezimmer mit Badewanne und Waschmaschinenanschluss sowie einer separaten Toilette und Balkon. Ausstattung // voll ausgestatte Küche inkl. Einbaugeräten (Kühlschrank mit TK-Fach, Spüle, Ceranfeld, Backrohr, Geschirrspüler, Dunstabzug) // Beschattung und Sichtschutz in allen Wohnraumfenstern durch innenliegende Lamellenjalousien // hochwertiger Parkettboden // Waschmaschinenanschluss im Bad // geschmackvolle, neutrale Verfliesung in den Nassräumen // großflächige Spiegel, elektrischer Handtuchwärmer sowie Designarmaturen in Badezimmer // Wohnungseingangstüre als Sicherheitstüre (Widerstandsklasse III) // Telekabelanschluss in Wohnzimmer // Bauweise als Energiesparhaus // jede Wohnung verfügt über ein eigenes Kellerabteil Heizung Die Warmwasseraufbereitung und Heizung erfolgt über Fernwärme, die monatlichen Kosten betragen derzeit € 78,26 inkl. USt. und werden zuzüglich zur Miete verrechnet. Die Abrechnung erfolgt nach Verbrauch. Allgemeine Flächen Das Haus verfügt über einen allgemeinen Fahrrad- und Kinderwagenabstellraum, einen geräumigen Keller (barrierefrei erreichbar) sowie einen Personenift.
Garage In der hauseigenen Garage können Stellplätze nach Verfügbarkeit angemietet werden.
Die Fotos stammen aus einer ähnlichen Wohnung! Die Wohnung ist noch vermietet, Besichtigungen sind jedoch möglich! Bei der Besichtigung ist die Mitnahme von Hunden nicht gestattet, da es in der Wohnung ein neugeborenes Baby gibt.
Änderunegen und Fehler vorbehalten!
Der Immobilienmakler erklärt, dass er – entgegen dem in der Immobilienwirtschaft üblichen Geschäftsgebrauch des Doppelmaklers – einseitig nur für den Vermieter tätig ist.














