
Intro
Note according to energy certificate draft law: An energy performance certificate has not yet been submitted by the seller or owner, after being informed of the obligation to provide one. Therefore, the energy performance of a building of similar construction type and age is considered. We assume no responsibility or liability for the actual energy efficiency of the property offered.
Please note that there is a close familial or economic relationship between the broker and the client.
The broker declares that – contrary to the common practice of dual brokerage in the real estate industry – they only work for the landlord.
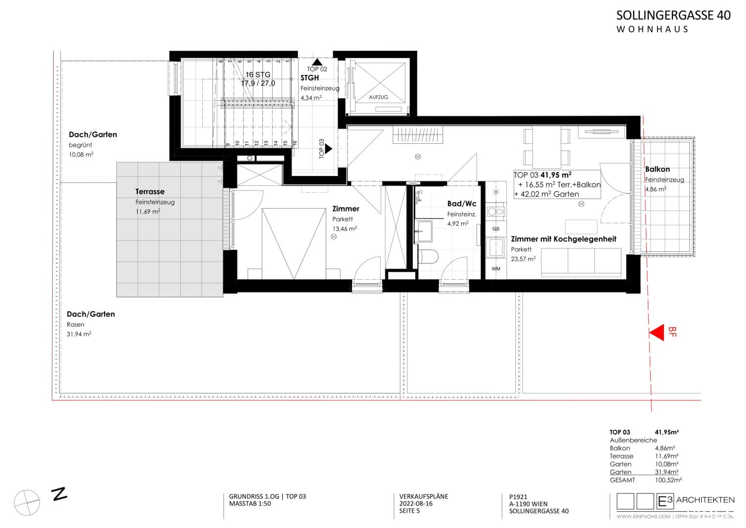
Areas & rooms
Living area
41.95 m²
Balcony area
4.86 m²
Balconies
1
Bathrooms
1
WCs
1
Terrace
11.69 m²

Discover object
Details
Flooring
Tiles, Parquet
Elevator
Passenger elevator
Parking space
Underground garage
Firing
Geothermal heating, Air source heat pump
Air condition
Air conditioner
Kitchen
Kitchen / open kitchen
Heating type
Underfloor heating
Energy
Price information
Total rent (excl. VAT)
€928.07
Operating expenses (excl. VAT)
€178.12
VAT
€109
Totals
€1,199
Brokerage
In accordance with the so-called "Principle of First Instruction", the landlord pays the commission.
Deposit
3 months gross rent
Map
Loading...









